



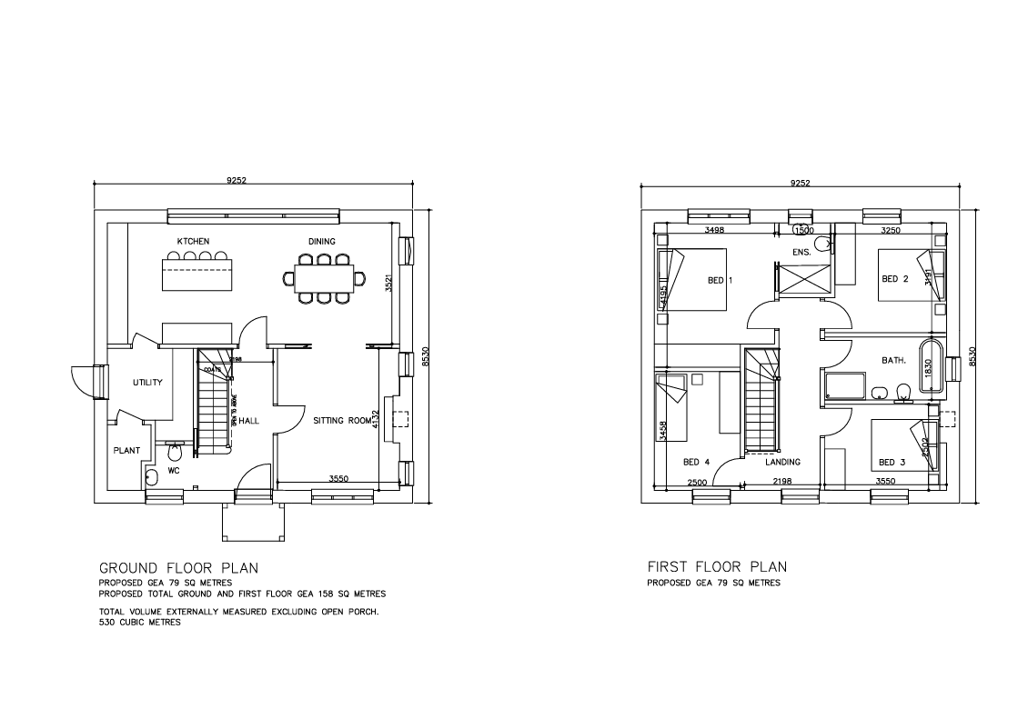
A rare and exciting opportunity to acquire a superb building plot with full planning permission for a stunning detached family home, ideally positioned in the very heart of the highly sought-after village of Dormansland.
Tucked discreetly away just off the High Street, this generous plot enjoys a wonderful sense of privacy and tranquillity, creating the perfect setting for a truly special home. With approved plans already in place, the groundwork has been done for you, allowing a buyer or developer to bring to life an impressive and beautifully designed residence tailored for modern family living.
This is a remarkable chance to build a bespoke “forever home” in a charming village setting, surrounded by countryside yet incredibly well connected.
Dormansland is a thriving and popular village offering a welcoming community atmosphere along with excellent everyday amenities. The village benefits from a mainline railway station providing convenient access into London, making it ideal for commuters. There are also highly regarded primary and secondary schools within close proximity, further enhancing its appeal for families.
Whether you are an individual looking to create your dream home or a developer seeking a fantastic project in a desirable location, this outstanding plot represents an opportunity not to be missed.
Time to put your property on the market? Take advantage of this months offer.
Speak to our trusted advisors
Paul Davies
Office Line 01342 302598
Mobile 07971993242
Let us find your next property
Time to put your property on the market?